Institutional

FTXT 2

Hydrogen Fuel Cell Lab

 

Location
Burnaby

Size
2,500 sq m

Completed
In Progress

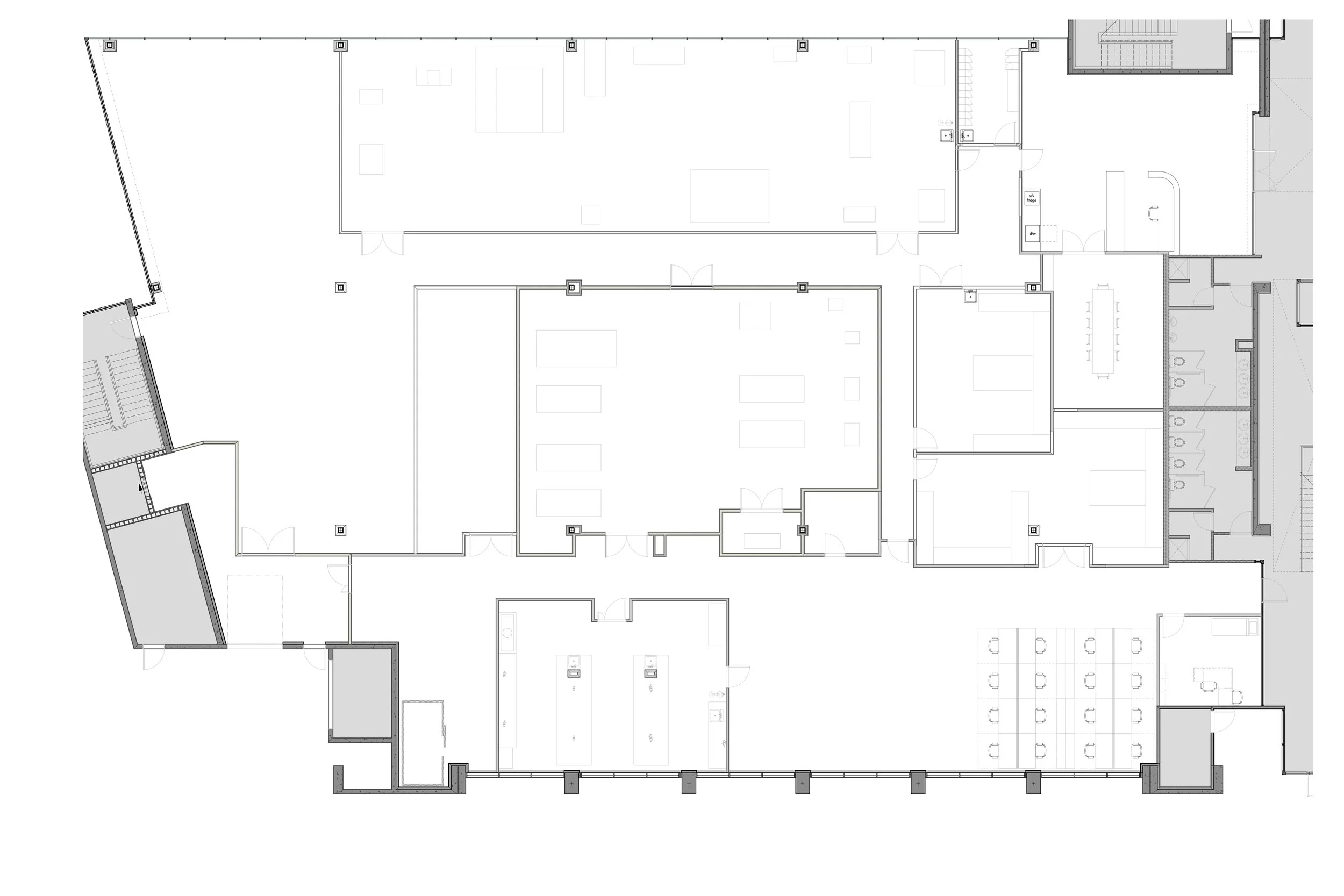
This 27,000 square foot (2500 sm) hydrogen fuel research laboratory has been designed to facilitate face to face communication in an interdisciplinary research and office environment. Laboratories, offices, meeting rooms and social spaces are organized so that work flow leads to chance encounters between engineers of various disciplines. A kitchen and lunch room are organized along a millwork ribbon that provides different scaled seating heights and arrangements for small or large meetings and facilitates collaborative work processes.

Previous
Previous

East Village Kids Daycare

Next
Next

La Cerveceria